** GUIDE PRICE: £260,000 - £280,000 ** A DECEPTIVELY SPACIOUS TWO BEDROOM END OF TERRACE PROPERTY WITH LONG REAR GARDEN AND OFF-ROAD PARKING FACILITIES FOR ONE VEHICLE **
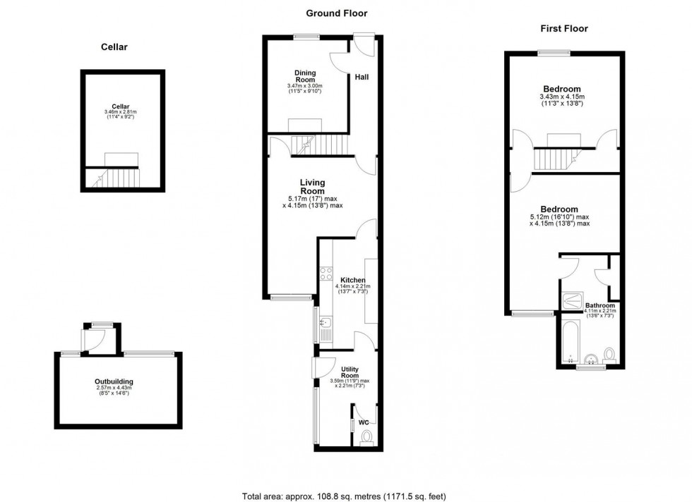
Nestled away in this sought after cul-de-sac setting, Page & Wells are delighted to offer for sale this larger than average home which features a useful cellar, whilst on the ground floor is an entrance hall, dining room, L-shaped living room, kitchen, utility room and cloakroom. On the first floor, there are two double bedrooms and a bathroom with both bath and shower cubicle. There is the added benefit of off-road parking to the front for one vehicle and a long rear garden with a timber outbuilding, currently being used as a gym. The property is situated within walking distance of Maidstone town centre and Maidstone West railway station. Contact PAGE & WELLS King Street Office on 01622 756703. Tenure: Freehold. EPC Rating: D. Council Tax Band: C.
KEY FEATURES
• Larger than average home • Two reception rooms • Downstairs cloakroom • Utility room • Useful cellar • Long rear garden • Outbuilding currently being used as a gym • Off-road parking • No forward chain
ACCOMMODATION
Lower Ground Floor:
Cellar
Ground Floor:
Entrance Hall
Dining Room
L-Shaped Living Room
Kitchen
Utility Room
Cloakroom
First Floor:
Bedroom One
L-Shaped Bedroom Two
Door to ...
Bathroom
EXTERNALLY
There is off-road parking to the front for one vehicle and a long rear garden with a timber outbuilding, currently being used as a gym.
VIEWING
Viewing strictly by arrangements with the Agent’s Head Office: 52-54 King Street, Maidstone, Kent ME14 1DB. Tel: 01622 756703.