This good sized and versatile four-bedroom mid-terraced home offers flexible accommodation across three floors and is positioned within walking distance of Rochester High Street and the mainline train station, making it an convenient location.
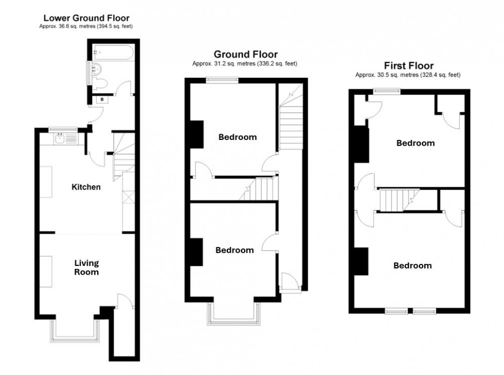
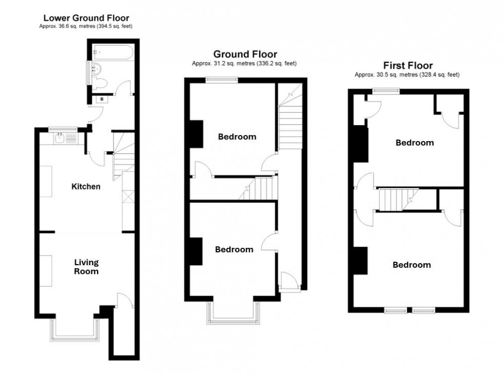
The ground floor comprises two bedrooms, with the front room offering the option to be used as an additional sitting room if desired. On the lower ground floor, you’ll find a spacious open-plan kitchen and living area, a rear lobby with access to the garden, and a family bathroom. The first floor completes the accommodation with a further two bedrooms.
Externally, the property enjoys a generous rear garden, extending to approximately 70ft and mainly laid to lawn perfect for families or outdoor entertaining.
Offered to the market with No Onward Chain, this property is ready for its new owners to move in and make their own.
Ground Floor
Entrance Hall
Bedroom (2.92m x 3.33m)
Bedroom (3.00m x 3.30m)
Lower Ground Floor
Open Plan Kitchen/Living Area (8.28m x 3.73m)
Rear Lobby
Bathroom
First Floor
Bedroom (3.35m x 3.84m)
Bedroom (3.30m x 3.53m)
External
Rear Garden (21.34m)
Local Area Information For Rochester
A popular residential location offering the perfect balance of convenience and character. Situated just a short distance from Rochester High Street, residents benefit from a wide selection of shops, cafés, bars, and restaurants, along with the area’s vibrant cultural scene.
The historic Rochester Castle and Rochester Cathedral are nearby, providing beautiful surroundings and a sense of heritage, while the River Medway offers scenic walks and open space to enjoy.
For commuters, Rochester’s mainline train station offers frequent services to London St Pancras, London Victoria, and Charing Cross, with journey times from around 35 minutes, making it an ideal location for those travelling into the capital. Road connections are also excellent, with easy access to the A2, M2, and M20.
Families will appreciate the selection of well-regarded local schools, both primary and secondary, including the renowned Kings School Rochester.
ADDITIONAL INFORMATION
Freehold Council Tax Band C EPC Rating D Double Glazing Gas Central Heating