** GUIDE PRICE: £280,000 - £290,000 ** A SPACIOUS AND WELL-PRESENTED TWO BEDROOM END OF TERRACE PROPERTY WITH PARKING FACILITIES TO THE REAR, SITUATED ON THIS POPULAR RESIDENTIAL DEVELOPMENT **
Page & Wells are delighted to bring to the market this rarely available two bedroom home in excellent order throughout, and is considered ideal for the first time buyer or buy to let investor. The ground floor accommodation offers an entrance porch, spacious lounge and a modern kitchen/diner. Whilst on the first floor, will be found two bedrooms and a modern wet room. Externally, there is a pleasant garden to the rear and allocated parking. The property is well placed for all local amenities and an internal viewing is recommended. Contact PAGE & WELLS King Street Office on 01622 756703. Tenure: Freehold. EPC Rating: Council Tax Band: C.
LOCATION
Situated on a popular residential development within close proximity of local amenities.
KEY FEATURES
• Two bedrooms • Spacious lounge • Modern kitchen/diner • Modern wet room • Allocated parking • Ideal first time purchase
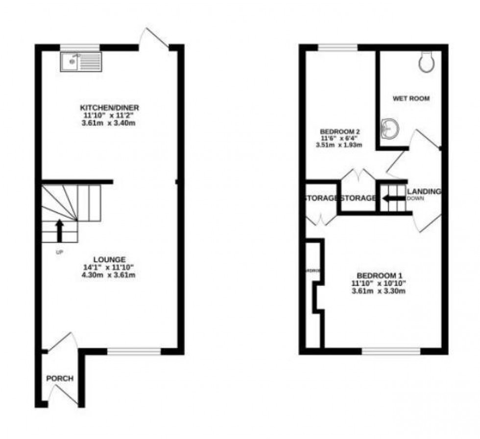
ACCOMMODATION
Ground Floor:
Entrance Porch
Lounge
Kitchen/Diner
First Floor:
Landing
Bedroom One
Bedroom Two
Wet Room
EXTERNALLY
There is a pleasant garden to the rear and allocated parking.
VIEWING
Viewing strictly by arrangement with the Agent’s Head Office: 52-54 King Street, Maidstone, Kent ME14 1DB. Tel: 01622 756703.