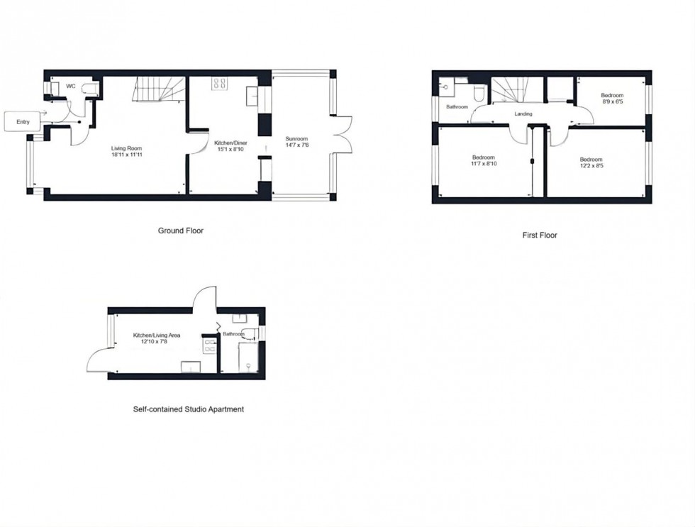
3 Bed House - Semi-Detached For Sale

St Andrew's Road, Maidstone

Price £379,950

3 1 2



Call us today and book
a viewing on 01622 756 703

Book a Viewing

How much is your property worth?