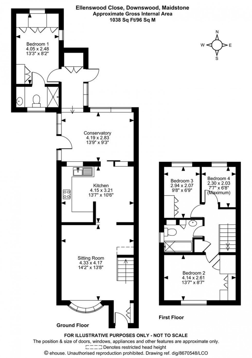
Introducing this gorgeous 4 bedroom semi-detached property set in a cul-de-sac location, in the sought after area of Downswood. A stones throw from the award winning Mote Park which boasts 450 acres of open space.
As you step in, you're greeted by an entrance way into your well proportioned lounge, moving through to a dining area adjacent to the modern kitchen. Moving through again, to the bright and airy conservatory giving flexible living accommodation as here you have access to the garden and also to the private, downstairs bedroom with built in storage and an en-suite shower room.
On the first floor, you have a great sized double bedroom followed by two further bedrooms, complete with built in storage, also a fantastic family bathroom giving space for the entire family.
Externally, you have a driveway with parking for two cars whilst still having a beautifully landscaped front garden. The well maintained rear garden gives you access to a sociable decked area were you can sit and enjoy, along with another seating area under a pergola for that alfresco dining and further space for a BBQ and some storage. Tenure: Freehold. EPC Rating: TBC. Council Tax Band: D.
GROUND FLOOR
Entrance Way
Lounge
Kitchen
Dining Room
Conservatory
Bedroom One
En-Suite Shower Room
FIRST FLOOR
Bedroom Two
Bedroom Three
Bedroom Four
Family Bathroom
EXTERNALLY
Front Garden
Driveway
Rear Garden
VIEWING
Strictly by arrangement with the Agent's Bearsted Office, 132 Ashford Road, Bearsted, Maidstone, Kent ME14 4LX. Tel: 01622 739574.