This beautifully presented two-bedroom semi-detached home is located on the ever-popular Poets Development in Larkfield. Decorated and maintained by the current owner to a high standard, the property features a modern interior and offers comfortable, low-maintenance living throughout.
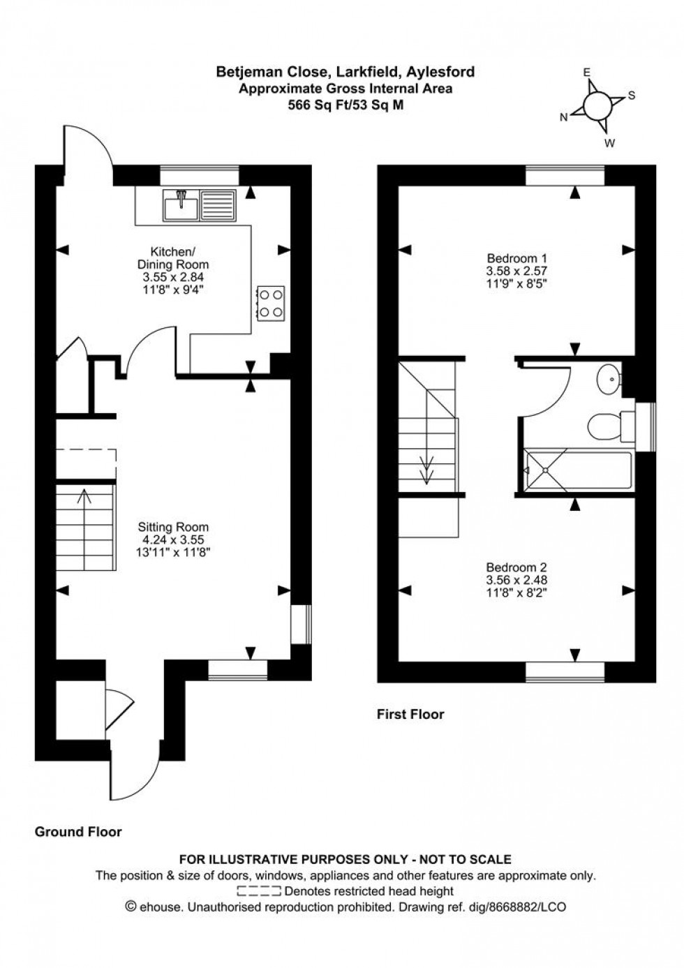
The accommodation comprises an entrance porch, a spacious living room, and a kitchen/diner to the ground floor. On the first floor, there is a landing, two good-sized bedrooms, and a modern bathroom/WC.
Externally, to the rear, there is a pleasant, low-maintenance garden, perfect for relaxing or entertaining. The property also benefits from an allocated parking space conveniently situated nearby.
The Poets Development is ideally positioned for a wide range of local amenities, including a Tesco Superstore, New Hythe railway station, and convenient access to Junction 4 of the M20 motorway.
LOCAL AREA INFORMATION FOR LARKFIELD
Larkfield is a sought after area thanks to its convenient access to so many things.
For recreation you have the local leisure centre at Larkfield, many parks, green spaces and countryside close by. Leybourne Lakes and Manor Park are particularly noteworthy.
There are a good range of shops, supermarkets and eateries in Larkfield (including Martin's Square). West Malling is the closest town (less than 2 miles away) and is one of the most attractive small towns in mid-Kent with a wide main street lined on each side by a fine collection shops and eateries. Maidstone is approximately 5 miles away.
For the commuter Junction 4 of the M20 gives access to the motorway network. There are mainline train stations at nearby West Malling, Aylesford and East Malling.
For education there is a comprehensive range of primary, grammar and private educational opportunities. For more schools information please visit www.kent-pages.co.uk/education or ask for a Page & Wells Key Facts for Buyers Guides.
ADDITIONAL INFORMATION
Freehold Council Tax Band C EPC Rating D UPVC Double Glazing Gas Central Heating