Guide Price £425,000
4 2 2
Call us today and book
a viewing on
01622 756 703
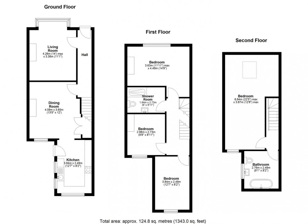
Double glazed entrance door with leaded light glass inset to …
Oak flooring. Staircase to first floor.
Double glazed bay window to front elevation. Central fireplace in natural brick surround with fitted wood burning stove. Oak flooring.
Double glazed window to rear elevation. Open fireplace. Oak flooring. Built-in cupboards. Leading to ...
Newly fitted kitchen with excellent range of Quartz work surfaces with cupboards and drawers beneath. Sink unit with ProBoil hot water tap. Range of wall cupboards. Space for oven and microwave. 4-ring ceramic hob with extractor fan over. Plumbing for dishwasher and washing machine. Display shelving. Inset ceiling lighting. Double aspect with double glazed windows and door to garden.
Staircase to second floor.
Double glazed window to front elevation.
Double glazed window to rear elevation.
Double glazed window to rear elevation.
Shower cubicle with over-head and hand-held shower. Pedestal wash hand basin. Low level WC. Chrome heated towel rail. Tiled walls. Extractor fan. Recessed shelving. Inset ceiling lighting.
Skylight.
A beautifully proportioned principal bedroom with Velux window. Double glazed window to rear elevation. Built-in cupboard.
Free-standing roll top bath with side mounted mixer tap and shower attachment. Pedestal wash hand basin. Low level WC. Chrome heated towel rail and radiator. Inset ceiling lighting. Extractor fan. Part tiled walls. Double glazed window to side elevation. Cupboard concealing Baxi gas fired boiler serving central heating and domestic hot water.
There is a small garden to the FRONT of the property with brick walling, wrought iron gate and balustrading. The landscaped REAR GARDEN is a good size. Immediately behind the house is a decked terrace with steel framed covered seating area leading on to an area of well-maintained garden with shingled beds and well-stocked flower borders. There are a variety of ornamental trees and shrubs, together with an attractive arbour with climbing rose. At the foot of the garden is a DETACHED DOUBLE GARAGE with hand roll-up door, power, light and electric car charger.
Viewing strictly by arrangement with the Agent’s Head Office: 52-54 King Street, Maidstone, Kent ME14 1DB. Tel: 01622 756703.
Leave Maidstone on the A20 Ashford Road. Proceed to the traffic lights at Square Hill and turn right. Continue to the mini-roundabout bearing left. First left into Hastings Road. Continue on into St Philips Avenue.